1.詢價條件
衡德高速公路更換車道LED指示標志工程,詢價人為河北交通投資集團衡德高速公路有限公司,現對本項目進行公開詢價。
2.項目概況與詢價范圍
(1)工程地點:衡德高速公路全線收費站。
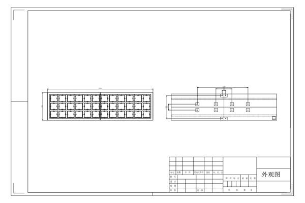
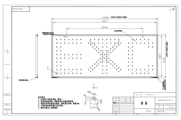
(2)工程內容:衡德高速公路車道LED指示標志的更換維修與遷移工作。共需增加普通像素桶指示標志10套,LED指示標志4套。具體設備尺寸、參數與安裝地點詳見附件設備圖紙。
(3)工程時間:本項目實施時間為2020年5月實施,計劃工期15天。
(4)現場考察:報價人自行進行現場考察。
3.報價人資格要求
本詢價項目要求報價人具有工商行政管理部門核發的有效企業營業執照,能夠從事本項目實施。
4.詢價文件的獲取
凡有意參加報價者,可從本網站下載附件清單及報價函。
5.報價文件的遞交
報價人應將報價函密封至普通信封內進行遞交,報價文件遞交的截止時間為
6.聯系方式
詢價人:河北交通投資集團衡德高速公路有限公司
地??址:衡水市北環西路1199號
電??話:0318-2109099
聯系人:
附件一:報價函。
附件二:工程量清單。
附件三:設備圖紙
?
報價函
河北交通投資集團衡德高速公路有限公司:????????????
我們已認真研究衡德高速公路更換車道LED指示標志工程詢價公告并經現場考察后。
1、我們愿意遵照一切要求,愿意以普通指示標志單價?? 元10套共計??
元,LED指示標志單價?? 元4套共計?? 元。總計報價???? 元(大寫??? 元)維護期為12個月。
2、我們愿意按照《中華人民共和國合同法》履行自己的全部責任。
報價人:(蓋章)
聯系人:
電話:
???
日期:?? 年?? 月?? 日



?


